THIẾT KẾ NHÀ PHỐ 04 TẦNG 01 TUM TẠI HÀ NỘI – GIẢI PHÁP TỐI ƯU CHO KHÔNG GIAN SỐNG HIỆN ĐẠI
Với kinh nghiệm nhiều năm trong lĩnh vực thiết kế kiến trúc – nội thất, Minh Trí tự hào là đơn vị đồng hành cùng khách hàng trong dự án thiết kế nhà phố 04 tầng 01 tum tại Hà Nội – một công trình mang đậm dấu ấn hiện đại, tối ưu không gian sống và công năng sử dụng.
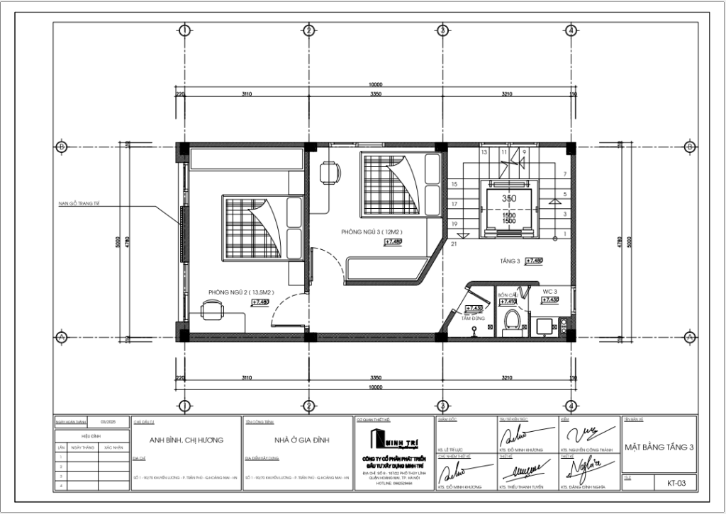
Tổng quan công trình:
• Địa điểm: Quận Hoàng Mai, TP. Hà Nội
• Quy mô: 185 m2; 04 tầng + 01 tum
• Phong cách: Hiện đại, chú trọng ánh sáng tự nhiên và thông gió
• Chức năng: Tầng 01 không gian phòng khách và bếp ăn; tầng 02 – 03 – 04 là tầng dành cho phòng ngủ cha mẹ và con cái; tầng tum sân thượng thiết kế tiện nghi.
Điểm nổi bật trong thiết kế:
• Bố trí không gian linh hoạt, thông minh, phù hợp với mặt bằng đô thị
• Sử dụng vật liệu bền đẹp, tiết kiệm chi phí
• Thiết kế mặt tiền sang trọng, hiện đại, tạo ấn tượng ngay từ cái nhìn đầu tiên
• Lồng ghép yếu tố xanh – giếng trời, sân vườn mini tại từng tầng, giúp căn nhà luôn thông thoáng và gần gũi với thiên nhiên. Đặc biệt trên sân thượng có vườn BBQ, bể bơi nhỏ, phòng xông hơi giúp gia chủ thư giãn vào dịp cuối tuần.
Một số hình ảnh trong quá trình thiết kế:
Sau khi tiến hành khảo sát và kí hợp đồng thiết kế, chúng tôi lên hồ sơ thiết kế theo yêu cầu công năng sử dụng của gia chủ.









Chúng tôi không chỉ thiết kế một ngôi nhà, mà còn đồng hành cùng khách hàng kiến tạo một tổ ấm trọn vẹn, hài hòa giữa thẩm mỹ và công năng.
Liên hệ ngay với Minh Trí để được tư vấn và nhận báo giá chi tiết cho công trình của bạn!