Thiết kế Thi công trọn gói Nhà Phố tại Hà Nội giá rẻ chỉ 400 Triệu Đồng – Phù hợp nhu cầu gia đình trẻ
Bạn đang tìm kiếm một giải pháp thiết kế nhà phố tại Hà Nội vừa đẹp, vừa tiết kiệm, lại phù hợp với ngân sách chỉ khoảng 400 triệu đồng? Đây chính là bài viết dành cho bạn!
Có thể xây nhà phố với 400 triệu đồng không?
Câu trả lời là CÓ, nếu bạn muốn một bản thiết kế hợp lý, tối ưu chi phí và tận dụng vật liệu hiệu quả. Với 400 triệu đồng, bạn hoàn toàn có thể sở hữu một ngôi nhà phố 01 tầng có gác lửng, đáp ứng đầy đủ nhu cầu sinh hoạt của một gia đình từ 02 ÷ 04 người.
Giải pháp thiết kế nhà phố giá rẻ tại Hà Nội
Với nhu cầu nhà ở hiện nay tăng cao tại các thành phố lớn, đặc biệt là nhu cầu nhà ở giá rẻ phù hợp với túi tiền của đại đa số những gia đình trẻ, nhu cầu học tập làm việc sinh viên, chúng tôi cung cấp mẫu thiết kế thi công trọn gói chỉ từ 400 triệu đồng, đã được triển khai thực tế tại P. Lĩnh Nam, Q. Hoàng Mai, TP. Hà Nội:

Thông tin cơ bản công trình:
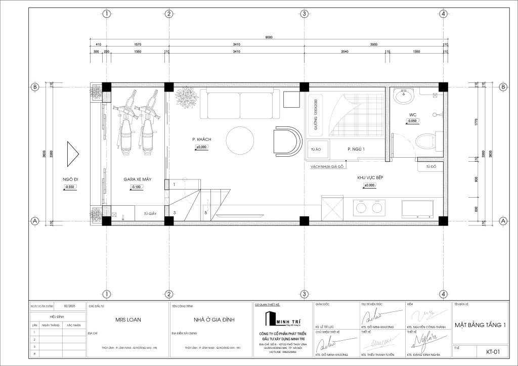
- Diện tích: 35 m2
- Phong cách: Hiện đại
- Cấu trúc: 01 tầng + gác lửng, hệ thống móng sử dụng móng băng, đảm bảo sau này có thể lên thêm tầng.
- Chức năng: 2 phòng ngủ, 1 phòng khách, 1 phòng thờ, bếp + WC. Ngoài ra, sử dụng tối đa thông gió và ánh sáng tự nhiên
- Mức đầu tư: 400 triệu đồng
- Thời gian thi công: 1,5 tháng
Chúng tôi sử dụng vật liệu chất lượng tốt trên thị trường nhằm đảm bảo độ bền và tính thẩm mỹ cao. Từng centimet trong căn nhà đều được tối ưu hóa công năng sử dụng.
Cụ thể:
- Xi măng: PCB 30, 40 Chinfon
- Thép: Hòa Phát
- Gạch xây: Gạch nung A1
- Bê tông thương phẩm: M250
- Cát vàng loại 1: Đổ bê tông
- Cát đen sàng loại 1: Xây trát
- Đá 1×2: Đá xanh
- Gạch lát: Granit Thạch Bàn
- Sơn: Nishu công nghệ Nhật Bản
- Chống thấm: Sika
- Cửa thông phòng: Nhựa giả gỗ
- Cửa chính: Sắt kết hợp nhôm kính Xingfa
- Dây điện: Cadisun
- Ống nước: PPR và PVC Tiền Phong
Một số hình ảnh trong quá trình thiết kế, thi công











Lợi ích khi chọn dịch vụ thiết kế của chúng tôi
- Chi phí rõ ràng, minh bạch
- Thiết kế theo yêu cầu: Cá nhân hóa theo diện tích đất và nhu cầu sử dụng
- Hồ sơ thiết kế đầy đủ: Kiến trúc – kết cấu – điện nước – phối cảnh
- Tư vấn miễn phí: Hướng nhà, phong thủy, vật liệu
- Vật tư sử dụng đúng chủng loại, mẫu mã
- Các công tác xây dựng đúng quy chuẩn và tiêu chuẩn xây dựng hiện hành
- Bảo hành dài hạn và bảo trì trọn đời dự án
Chúng tôi luôn sẵn sàng đồng hành cùng bạn để biến giấc mơ có nhà riêng tại Hà Nội thành hiện thực, dù bạn chỉ có trong tay 400 triệu đồng.
Liên hệ ngay để nhận báo giá miễn phí và bản thiết kế mẫu phù hợp với khu đất của bạn!